LOG-IN / REGISTER
Winner 2023 / ARCHITECTURAL DESIGN / Residential Single

  Share on social media  

  • Project Title

    Edgewood House


  • Winning Firm

    Terry & Terry Architecture


  • Lead Designer

    Alex Terry, Ivan Terry


  • Awarded

    WINNER, ARCHITECTURAL DESIGN, Residential Single
  • Project Link
  • Project Location
    Palo Alto, United States
  • Project Status
    Completed
  • Completion Date
    August, 2020
  • Client
    Gabe Leung
  • General Contractor
    Greenberg Construction
  • Photographer credit
    Bruce Damonte Photography

  • Architectural Firm
     
  • Architect Firm / Studio Name
  • Lead Architect(s)
    Alex Terry, Ivan Terry
  • Other Team Members
    Naomi Hansen
  • About Firm
    Terry & Terry Architecture focuses on its ability to combine innovative architectural theory and practice. They have extensive, unique experience with building construction and fabrication that has enabled them to acquire and refine a first-hand knowledge of the relationship between concept, construction and project realization. TTA strongly advocates sustainable, energy-efficient building materials and methods as a means of reducing the energy required to construct and operate buildings.

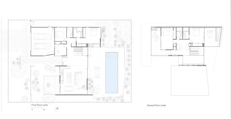
The design consists of transforming a 1950’s Joseph Eichler home. Using a complimenting modern material palette, the design utilizes the primary floor plan, transforming the existing space and forming the new second floor by folding out a series of horizontal and vertical planes of the ground floor. The new roof form creates a large central area and links the bedroom wing with living area. Poured-in-place concrete masses are used to support the roofs, upper floor and cantilevered main stair landing.

Credits: Bruce Damonte Photography

Outstanding Property Award London
Privacy Overview

This website uses cookies so that we can provide you with the best user experience possible. Cookie information is stored in your browser and performs functions such as recognising you when you return to our website and helping our team to understand which sections of the website you find most interesting and useful.