LOG-IN / REGISTER
Winner 2022 / ARCHITECTURAL DESIGN / Commercial High-rise

  Share on social media  

  • Project Title

    One Bedford Place


  • Winning Firm

    GYU Limited (with Axia Design Associates)


  • Lead Designer

    Gabriel Yu, Chris Wong


  • Awarded

    WINNER, PROPERTY DEVELOPMENT, Commercial High-rise
  • Project Location
    Hong Kong, China
  • Project Status
    Under development
  • Client
    Lofter Group Limited
  • General Contractor
    Chinney Builders Co., Ltd.

  • Developer Firm info
  • Development Company
  • Company Short Biography
    LOFTER GROUP LIMITED is one of the renowned property developers based in Hong Kong. As a premium brand infused with love in architecture, our core business is to develop exceptional and high-quality residential, commercial, retail, and industrial properties. The Group has been actively exploring a variety of opportunities for developing urban renewal projects with key focus on Grade A Commercial and Luxury Residential developments.
  • Architectural Firm
     
  • Architect Firm / Studio Name
  • Lead Architect(s)
    Gabriel Yu, Chris Wong
  • Other Team Members
    Leo Leung, Wai Tsang, Franklin Tsang, Carrie So, Taymoore Balbaa, Leisdania Reynoso, Mike Good, Justine Houseley
  • About Firm
    GYU Limited is a well-established firm that offers Architectural, Land and Property Development Management Consultancy services in Hong Kong. Axia Design Associates is a Toronto and Hong Kong based architecture, interiors, and urban design studio established by Taymoore Balbaa and Chris Wong. Our studio is defined by its cultural diversity and varied points of expertise, but unified in our joint believe in the transformative power of architecture and the urban environment.
  • Interior Design Firm
  • Interior Design Firm / Studio
  • Lead Interior Designer(s)
    Frank Leung
  • Other design Team Members
    Michelle Fok, Ken Yeung, Alvin Chan
  • About the interior design firm
    Established in 2009, via. is an inter-disciplinary architecture and interior design practice based in Hong Kong. Led by founder and principal, Frank Leung, the studio’s award winning portfolio includes residential, hospitality, commercial and cultural projects throughout Asia. Driven by the curiosities of life and a continual quest for beauty, via.’s designs are imbued with an emotional resonance tailored to each project’s locale, purpose and aspirations.

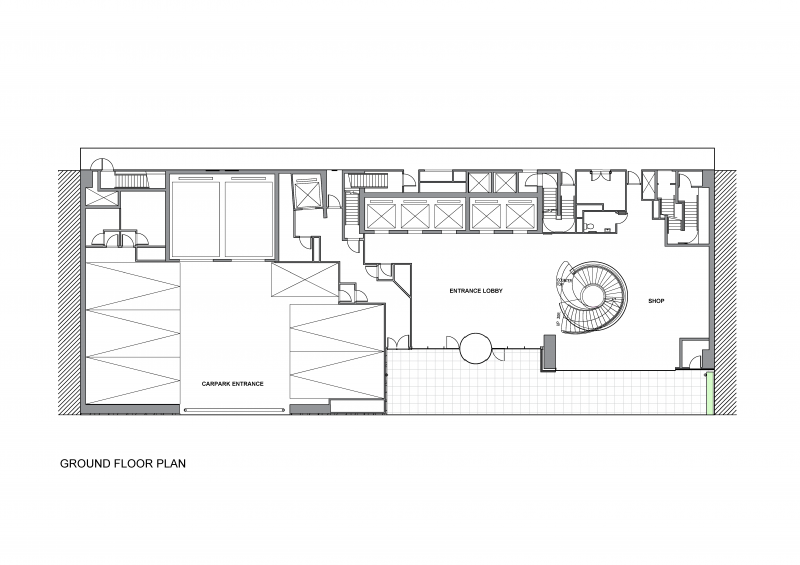
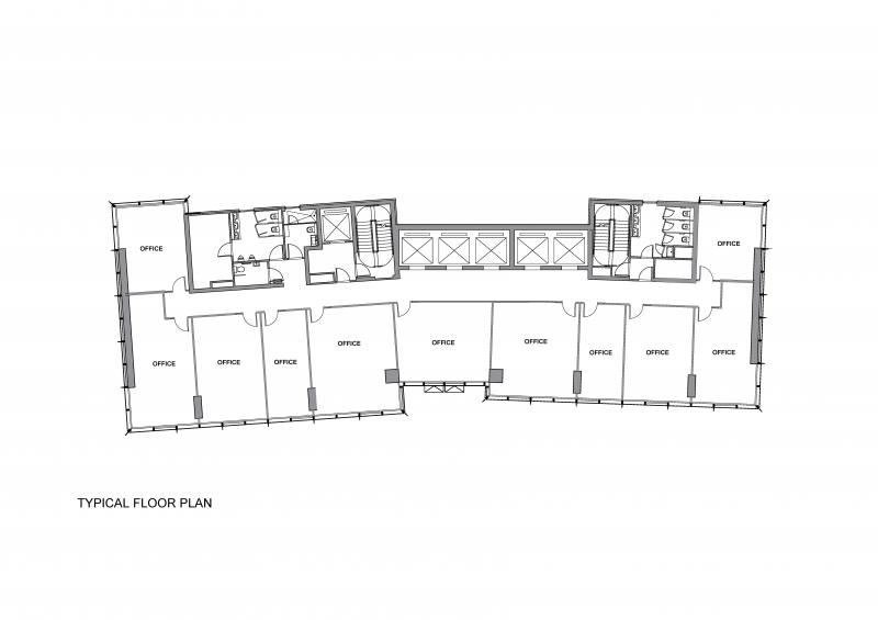
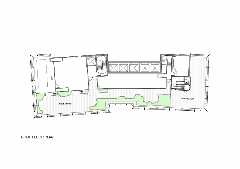
One Bedford Place is a brand-new iconic commercial development amidst the formerly industrial neighborhood that differentiates from the conventional monolithic appearance of commercial high-rise buildings in Hong Kong. The architectural design takes the form of a “splitted” twin-towers with protruding “bridges” slanted at varying angles to create a sense of movement and play. Cladded with full height curtain wall and decorative fins, this dynamic composition, together with its slender, prismatic volumes and expressive exterior language, creates a distinctive architectural identity.

Photo Credit: Marcus Choi

Outstanding Property Award London
Privacy Overview

This website uses cookies so that we can provide you with the best user experience possible. Cookie information is stored in your browser and performs functions such as recognising you when you return to our website and helping our team to understand which sections of the website you find most interesting and useful.