LOG-IN / REGISTER
Platinum 2021 / ARCHITECTURAL DESIGN

  Share on social media  

  • Project Title

    Mayor Mohammad Hanif Jame Mosque


  • Winning Firm

    SHATOTTO architecture for green living


  • Lead Designer

    Ar. Md.Rafiq Azam


  • Awarded

    PLATINUM AWARD, ARCHITECTURAL DESIGN, Cultural
  • Project Link
  • Project Location
    Dhaka, Bangladesh
  • Project Status
    Completed
  • Completion Date
    October, 2018
  • Client
    Dhaka South City Corporation
  • General Contractor
    Nt Kta-at (joint Venture)

  • Architectural Firm
     
  • Architect Firm / Studio Name
    SHATOTTO architecture for green living
  • Lead Architect(s)
    Ar. Md.Rafiq Azam
  • Other Team Members
    Ar. Ibtesa-Moon Adittya, Ar. Ikramoon Nisa, Engr. Mohammad Akter Hossen, Mostafizur Rahman,Engr. Nazrul Islam, Engr. Md. Lutfor Rahman
  • About Firm
    Md. Rafiq Azam is one of the internationally acclaimed architects from Bangladesh practicing for the last 30 years and developed a remarkable style of his own. His architecture is a fusion of tradition, nature, and mysticism with significant harmony. Rafiq Azam is a 1989 graduate from Bangladesh University of Engineering and Technology (BUET). His practice name is “SHATOTTO architecture for green living” since May 1995. In 2004, Rafiq Azam participated in “Glenn Murcutt Master Class” .

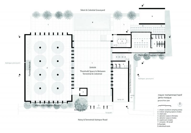
The design philosophy of the project was to create a threshold space between the terrestrial world, the busy road on the north and the celestial world, the graveyard on the south by embedding the traditional typologies with the contemporary typologies. The shaan (communal space) inspired by the 17th century old Mughal Mosque, the flanked Mehrab, the prayer space for women, the glass bridge inspired by the Quran’s Verses all these things are designed such a way to enable the user to travel from the physical plane to the metaphysical realm creating a transcendent bond to divinity.

Photo Credit: Rafiq Azam

Outstanding Property Award London
Privacy Overview

This website uses cookies so that we can provide you with the best user experience possible. Cookie information is stored in your browser and performs functions such as recognising you when you return to our website and helping our team to understand which sections of the website you find most interesting and useful.