LOG-IN / REGISTER
Winner 2020 / INTERIOR DESIGN / Residential, Single

  Share on social media  

  • Project Title

    The Xinhu 18 Masion


  • Winning Firm

    Tingmei Decoration (Aestheticorations) Co., Ltd., Huzhou, China


  • Lead Designer

    Hu, Jianwei /Ren, Di


  • Awarded

    WINNER, INTERIOR DESIGN, Residential, Single
  • Project Location
    Hangzhou, China

  • Interior Design Firm
  • Interior Design Firm / Studio
    Tingmei Decoration (Aestheticorations) Co., Ltd., Huzhou, China
  • Lead Interior Designer(s)
    Hu, Jianwei /Ren, Di
  • About the interior design firm
    Tingmei Decoration (Aestheticorations) Co., Ltd. is a comprehensive company specialized in architectural, landscape and interior design and the overall execution of construction.

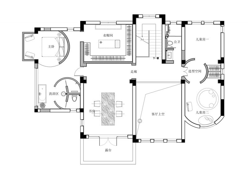
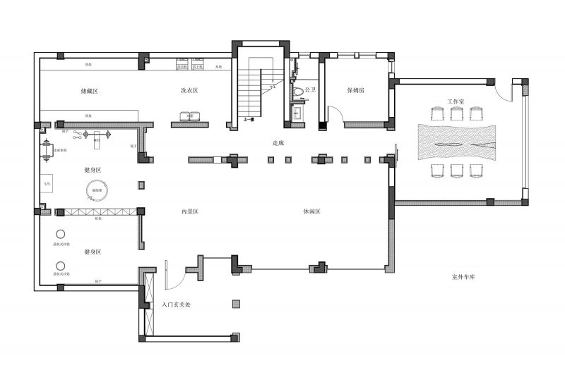
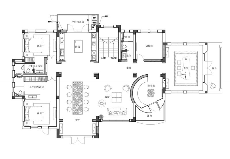
The mansion is a home as well as a gallery with aesthetic insights. The interior compositions are distinguished and separated by lines, which shows a rational touch of the designer. An integration of both straight and curve lines is utilized onto this mater piece in an organic and harmonious way, presenting an extraordinary temperament of diversity and harmony of the mansion.

Photo Credit: Lynn Wang

Outstanding Property Award London
Privacy Overview

This website uses cookies so that we can provide you with the best user experience possible. Cookie information is stored in your browser and performs functions such as recognising you when you return to our website and helping our team to understand which sections of the website you find most interesting and useful.