LOG-IN / REGISTER
Winner 2020 / ARCHITECTURAL DESIGN / Other Architectural Design

  Share on social media  

  • Project Title

    Dongguan Parking Building


  • Winning Firm

    GWP Architects


  • Lead Designer

    Guowei Zhang


  • Awarded

    WINNER, ARCHITECTURAL DESIGN, Other Architectural Design
  • Project Location
    Dongguan, China
  • Project Status
    Conceptual

  • Architectural Firm
     
  • Architect Firm / Studio Name
  • Lead Architect(s)
    Guowei Zhang
  • About Firm
    GWP Architects started work on urban and architectural design in Boston in 2012. The core team established a Hong Kong and Guangzhou company in 2015. Now, it has developed into an international architectural design firm with nearly 80 people. GWP has been adhering to the obsession of exploring design from the beginning of its creation. With the philosophy of “poetic habitat” and “win-win strategy”, we convey the design ideas from the fusion of China and the West

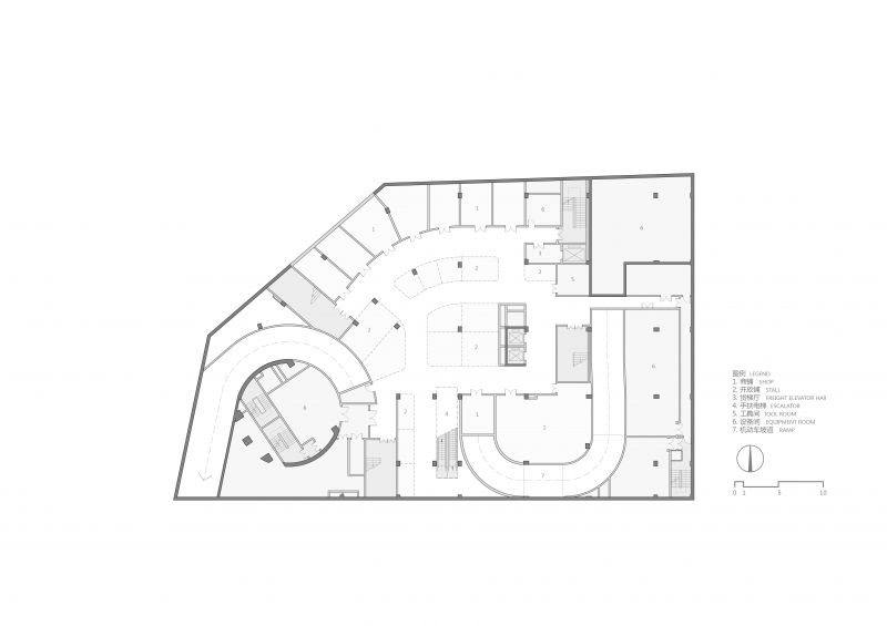
The inspiration of this project combines both the unique meandering water-bodies of Dongguan and the unique core location of the site, proposing to extend the two major streets as flowing, water-like ribbons, in order to reform the chaotic existing parking conditions in the vicinity and establish the spatial and façade languages for the new garage building. Using the ‘infinitely flowing loops’ to organize the traffic circulation, two independent yet equally dynamic curves spiral up and intertwine, forming an architectural image as an urban sculpture.

Photo Credit: Lynn Wang

Outstanding Property Award London
Privacy Overview

This website uses cookies so that we can provide you with the best user experience possible. Cookie information is stored in your browser and performs functions such as recognising you when you return to our website and helping our team to understand which sections of the website you find most interesting and useful.