LOG-IN / REGISTER
Winner 2020 / ARCHITECTURAL DESIGN / Residential, Single

  Share on social media  

  • Project Title

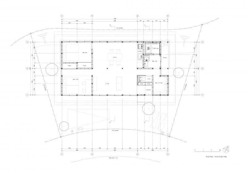
    House in Minohshinmachi


  • Winning Firm

    YASUYUKI KITAMURA


  • Lead Designer

    Yasuyuki Kitamura


  • Awarded

    WINNER, ARCHITECTURAL DESIGN, Residential, Single
  • Project Link
  • Project Location
    Minoh city, Osaka, Japan
  • Project Status
    Completed
  • Completion Date
    April, 2020
  • Client
    Shuhei Kimura
  • General Contractor
    Takada Corporation

  • Architectural Firm
     
  • Architect Firm / Studio Name
  • Lead Architect(s)
    Yasuyuki Kitamura
  • Other Team Members
    Takuma Togo
  • About Firm
    Yasuyuki Kitamura First -class architect 1989 Born in Uji city, Kyoto 2012 BFA in Architecture - Osaka University of Arts After working in an architectural design office and store design office 2019 Established YASUYUKI KITAMURA 2020 K-DESIGN AWARD - Grand Prize 2020 GOOD DESIGN AWARD - Winner 2020 35th World Architecture Community Awards - Honorary Members Award & Members award 2020 DFA Design for Asia Award 2020 - Silver Award 2020 The 28th Asia Pacific Interior Design Awards - Winner

This project is located in a new town with a rich natural environment in the northernmost part of Minoh City, Osaka. However, the surrounding houses were lined with houses unrelated to the rich natural environment and regional characteristics. The client's young couple were looking for a house to live with nature in such a land. The light roof, deep eaves, nested small rooms and two pillars like standing trees made the light environment as if it were a part of nature rather than cutting out the natural environment as a landscape.

Bio
Yasuyuki Kitamura
First -class architect
Registration Number 364764
Architectural Institute of Japan
Osaka Association of Architects and Building Engineers

2019 Established YASUYUKI KITAMURA
2012 BFA in Architecture - Osaka University of Arts
1989 Born in Uji-shi, Kyoto

Photo Credit: Yasuyuki Kitamura

Outstanding Property Award London
Privacy Overview

This website uses cookies so that we can provide you with the best user experience possible. Cookie information is stored in your browser and performs functions such as recognising you when you return to our website and helping our team to understand which sections of the website you find most interesting and useful.