LOG-IN / REGISTER
Honorable Mention 2020 / INTERIOR DESIGN

  Share on social media  

  • Project Title

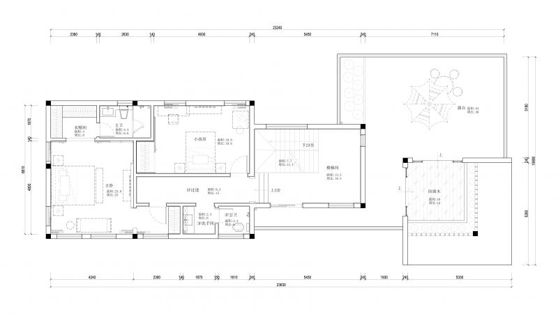
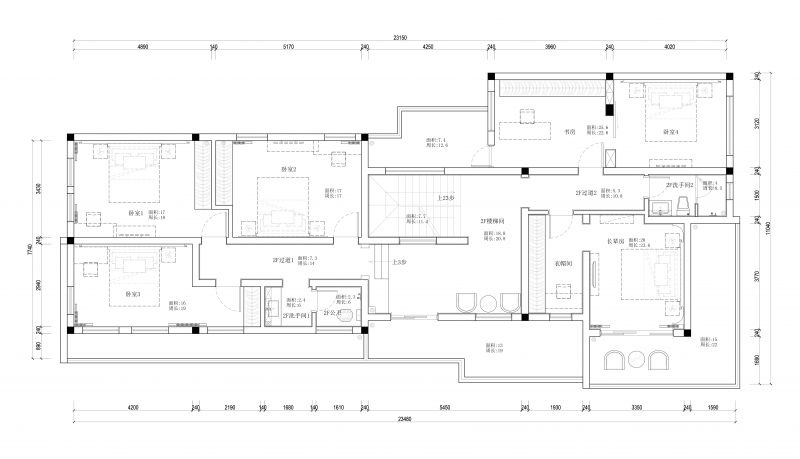
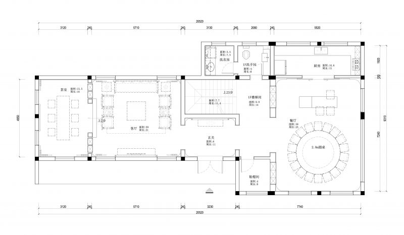
    Xiangxi Gongtian Villa


  • Winning Firm

    YIZE


  • Lead Designer

    5IDEA

  • Project Location
    Shenzhen, China
  • Project Status
    Completed

  • Interior Design Firm
  • Interior Design Firm / Studio
    YIZE
  • Lead Interior Designer(s)
    5IDEA
  • About the interior design firm
    5IDEA is a professional design service company integrating architecture, interior, furnishings and products. Under the international trend of thought, we actively explore the dialectical relationship between local culture and design aesthetics, appropriately guide the sustainability consciousness of design, and hope to convey the symbiosis between people, places and nature through modern design vocabulary.

The space follows the traditional Chinese symmetrical layout, and the traditional cultural concept of "a round day and a round place" permeates into every inch of space. The round table carries the implication that the whole family will be reunited and complete during the meal.

Photo Credit: Lynn Wang

Outstanding Property Award London
Privacy Overview

This website uses cookies so that we can provide you with the best user experience possible. Cookie information is stored in your browser and performs functions such as recognising you when you return to our website and helping our team to understand which sections of the website you find most interesting and useful.