LOG-IN / REGISTER
Platinum 2024 / INTERIOR DESIGN

  Share on social media  

  • Project Title

    Artisanal Curve


  • Winning Firm

    The Volks Design & Research Consulting Ltd.


  • Lead Designer

    Manuel Lap Yan Lam


  • Awarded

    PLATINUM AWARD, INTERIOR DESIGN, Workplaces
  • Project Link
  • Project Location
    Zhuhai, China
  • Project Status
    Completed
  • Completion Date
    November, 2023

  • Interior Design Firm
  • Interior Design Firm / Studio
  • Lead Interior Designer(s)
    Manuel Lap Yan Lam
  • Other design Team Members
    Scarlett Li
  • About the interior design firm
    The Volks Design & Research Consulting Ltd., an awarded inter-disciplinary design practice based in Macau and China lead by Harvard Graduated Architect Manuel Lam, who have received IAF Pioneer Architect Honor. Our commissions ranged from urban design to architecture, from interior design to product design, from graphic design to branding design. Our projects have received numerous international awards: German Red Dot Award, Korean K-Design Award, American Muse Design Award and many others.

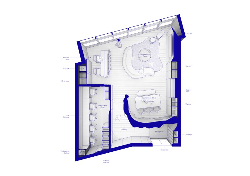
Artisanal Curve is an 88 square meter mini office space located in Zhuhai, China. The design effectively organizes various functions within the limited footprint by incorporating a single, three-dimensional white stroke - the "Artisanal Curve." Inspired by wind movements and Chinese calligraphy, this dynamic sculptural element serves multiple purposes as a reception hall, enclosed gallery, conference room screen, and visual guide to the meeting rooms. By blurring the boundary between art and functionality, the Artisanal Curve brings dynamic and artistic beauty to the mundane office setting.

Bio
The Volks Design & Research Consulting Ltd., an awarded inter-disciplinary design practice based in Macau and China lead by Harvard Graduated Architect Manuel Lam; he is an Architect, Interior Designer and Lecturer at the University of Saint Joseph Macau architecture department. Our commissions ranged from urban design to architecture, from interior design to product design, from graphic design to branding design. Our projects have received numerous international awards: German Red Dot Award, Korean K-Design Award, Muse Design Gold & Silver Awards, A’Design Awards & other design awards.

Other prizes
Under Manuel's leadership, studio has been awarded 2023 IAF Pioneer Architect Award, 2022 the Light of Asian Youth Designers Award, 40 Over 40 Outstanding Design Elite Award Macau, M+ China Top 100 Luxury Interior Designer Award, and has been identified as Top 36 Chinese Design Stars. Our projects have received numerous international awards: German Red Dot Award, Korean K-Design Award, Muse Design Gold & Silver Awards, A’Design Silver and Bronze Awards, Kapok The Most Beautiful Art Space Award, Himalaya Design Top Commercial Space Award, IWDA Office Space Innovation Design Award and others.

Photo Credit: Manuel Lap Yan Lam

Outstanding Property Award London
Privacy Overview

This website uses cookies so that we can provide you with the best user experience possible. Cookie information is stored in your browser and performs functions such as recognising you when you return to our website and helping our team to understand which sections of the website you find most interesting and useful.