LOG-IN / REGISTER
Winner 2023 / ARCHITECTURAL DESIGN / Residential Multiple Units

  Share on social media  

  • Project Title

    Stollwerck Residence


  • Winning Firm

    Salpietra & Gajdos Architects, S.R.O.


  • Lead Designer

    Andrej Alan Daniel Gajdos


  • Awarded

    WINNER, ARCHITECTURAL DESIGN, Residential Multiple Units
  • Project Location
    Bratislava, Slovakia (Slovak Republic)
  • Project Status
    Under development
  • Client
    3duby Park, A.s.
  • General Contractor
    Sibareal, A.s.

  • Architectural Firm
     
  • Architect Firm / Studio Name
  • Lead Architect(s)
    Andrej Alan Daniel Gajdos
  • Other Team Members
    Martin Simonides
  • About Firm
    The practice, founded in 2012 and set up in two offices – Chicago, USA and Bratislava, Slovak Republic – is a collaborative network of designers, engineers, consultants, and advisors across the globe. It enables an efficient global approach, balanced with local understandings of project sites, cultures, and opportunities. With over 20 years of cross-disciplinary know-how SAGA's versatile complexity and unique integrative approach helps creating bespoke spaces that enrich the human experience.

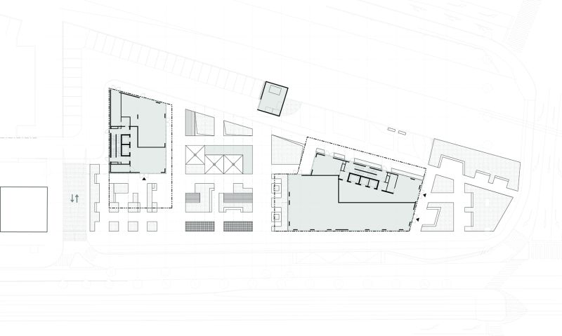
The site is situated at one of the „gates“ to the inner city, at the intersection of main infrastructural artery and local loop road.
The project is set into its surrounding following the principles of completing the street-line, marking the corner, creating a visual gateway point, providing inner open space, and creating perimeter open space for possible future connections.
Taller street-front corner building marking the intersection and shorter slightly pushed-back building are positioned within the site in such way that allows for central public plaza - a focal point of the development.

Bio
Andrej A.D. Gajdos is a founding partner of SAGA and head of the Bratislava office. During his extensive professional career, he has developed a great deal of expertise in broad variety of projects ranging from small scale interiors to large scale master planned facilities, and conducted wide range of research projects for city analysis studies.
As a member of the American and Slovak Institutes of Architects, he holds a Master of Architecture in Urban Design from Harvard’s Graduate School of Design and a Master of Architecture with Henry Adams Medal from The University of Texas at Arlington.

Other prizes
European Property Awards - Best Residential Interior Private Residence / 2023-2024 European Property Awards - Best Residential Interior Apartment / 2023-2024 European Property Awards - Best Architecture Multiple Residence / 2022-2023

Photo Credit: Andrej Alan Daniel Gajdos

Outstanding Property Award London
Privacy Overview

This website uses cookies so that we can provide you with the best user experience possible. Cookie information is stored in your browser and performs functions such as recognising you when you return to our website and helping our team to understand which sections of the website you find most interesting and useful.