LOG-IN / REGISTER
Winner 2021 / PROPERTY DEVELOPMENT / Commercial, High-Rise

  Share on social media  

  • Project Title

    First National Bank HQ / Raed Abillama Architects


  • Winning Firm

    Raed Abillama Architects


  • Awarded

    WINNER, PROPERTY DEVELOPMENT, Commercial, High-Rise
  • Project Location
    Beirut, Lebanon
  • Project Status
    Completed
  • General Contractor
    Manufacturers: Atelier Alain Ellouz, Facade Systems, Glass Line, Makary Marble, Wicona Wictec

  • Developer Firm info
  • Development Company
    Raed Abillama Architects
  • Company Short Biography
    Landscaping: Exotica Mechanical & Electrical Consultant: Wissam Tawil & Associates S.A.L. Structure Engineer: Pierre C. ABI RACHED - Civil Engineer - P.A.R.Consultants Contractor: Entreprises A.R. Hourie Manufacturers: Atelier Alain Ellouz, Facade Systems, Glass Line, Makary Marble, Wicona Wictec

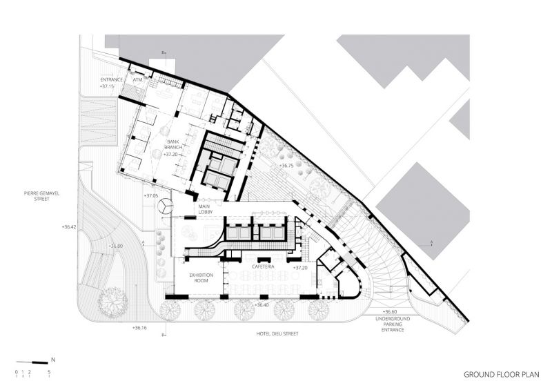
This distinctive building in Beirut’s museum district is designed as an environmentally conscious structure that responds to its surrounding context, housing the headquarters for the First National Bank. The building sits on a central site close to the National Museum of Beirut, as well as many key corporate and governmental buildings. Here, Raed Abillama Architects created a prominent building that highlights transparency and openness to the city around it, while responding to necessary environmental needs and optimizing the spatial performance.


Outstanding Property Award London
Privacy Overview

This website uses cookies so that we can provide you with the best user experience possible. Cookie information is stored in your browser and performs functions such as recognising you when you return to our website and helping our team to understand which sections of the website you find most interesting and useful.