LOG-IN / REGISTER
Winner 2021 / INTERIOR DESIGN / Industrial spaces

  Share on social media  

  • Project Title

    Lingfeng Innovation Industrial Park


  • Winning Firm

    Shencai Design


  • Lead Designer

    Shencai Design


  • Awarded

    WINNER, INTERIOR DESIGN, Industrial spaces
  • Project Location
    Ningbo, China

  • Interior Design Firm
  • Interior Design Firm / Studio
  • Lead Interior Designer(s)
    Shencai Design
  • About the interior design firm
    Established in Hong Kong in 1986, Godswill Design is an integrated planning, architecture and landscape design to interior design, engineering, soft furnishings and project management company with projects in Mainland China, Hong Kong, Macau and Taiwan. Established in 2005, Ningbo Shen Cai Design specialises in providing high quality finishing design, construction and soft furnishings integration services for real estate showhomes, sales offices and large areas.

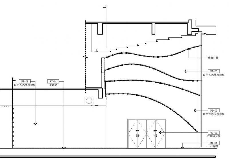
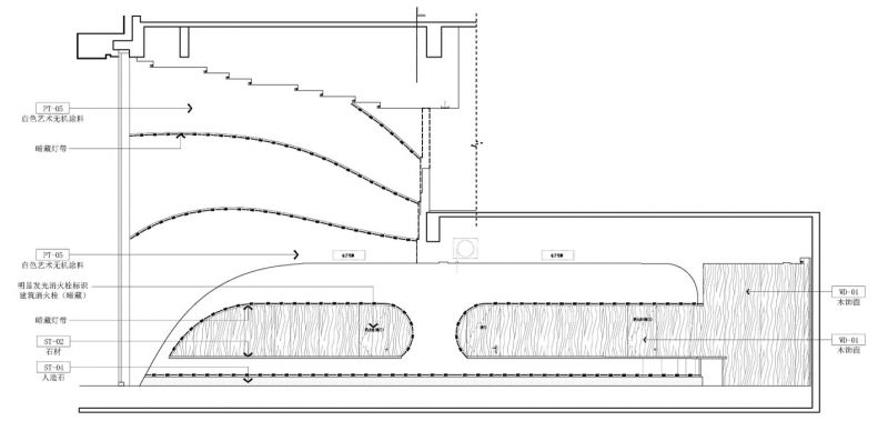
This case is the design of the interior space of the public area of the complex, with the concept of "riding the wave, the core of the park" as the keynote, and the design elements of line and light as a backdrop to present, naturally forming the relationship between the upper and lower space to see and be seen.


Outstanding Property Award London
Privacy Overview

This website uses cookies so that we can provide you with the best user experience possible. Cookie information is stored in your browser and performs functions such as recognising you when you return to our website and helping our team to understand which sections of the website you find most interesting and useful.