LOG-IN / REGISTER
Winner 2021 / ARCHITECTURAL DESIGN / Mixed-Use

  Share on social media  

  • Project Title

    IDEAREVE IKEGAMI


  • Winning Firm

    RYUICHI SASAKI/SASAKI ARCHITECTURE with TAKAYUKI YAGI/YAGI KOMUTEN CLIENT YASUNORI KAMATA/K-M-T


  • Lead Designer

    RYUICHI SASAKI LEAD ARCHITECT


  • Awarded

    WINNER, ARCHITECTURAL DESIGN, Mixed-Use
  • Project Link
  • Project Location
    TOKYO, Japan
  • Project Status
    Completed
  • Completion Date
    May, 2021
  • Client
    Yasunori Kamata Kamata/k-m-t
  • General Contractor
    Takayuki Yagi/yagi Komuten

  • Architectural Firm
     
  • Architect Firm / Studio Name
  • Lead Architect(s)
    RYUICHI SASAKI LEAD ARCHITECT
  • Other Team Members
    PRODUCER TAKAYUKI YAGI/YAGI KOMUTEN + BUILDER YASUNORI KAMATA/K-M-T + NAGATA ACOUSTICS
  • About Firm
    Led by Ryuichi Sasaki, Sasaki Architecture is an architecture studio based in Tokyo, Japan. We seek to re-interpret architecture's position within cultural practices that determine meaning, particularly within will of our era.  Sasaki Architecture is winner (in 2021) of THE PLAN AWARD 2021, ICONIC AWARDS 2021, ABB LEAF AWARDS 2020-2021, Shortlist, WAF 2020-2021, Shortlist.conic Awards 2019, 2020 and German Design Award 2021, Special Mention.

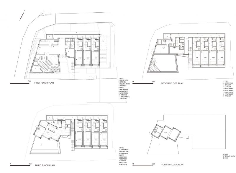
Designed to present a variety of spaces for musical activities, the building’s structure is geometrically spread out along the site. The music hall is placed in the southwest part of the building, creating a space for circulation between the interior and exterior of the site: forming a relationship between the foyer and entrance hall with surrounding undulating hills. Atop, residential space is designed with a volume shape in an effect of mountainous topography, shifted along the north-south axis of the site — symbolic to this project’s facility in connection to the temple.

Bio
Led by Ryuichi Sasaki, Sasaki Architecture is an architecture studio based in Tokyo, Japan.
We seek to re-interpret architecture's position within cultural practices that determine meaning, particularly within will of our era. 
Sasaki Architecture is winner (in 2021) of THE PLAN AWARD 2021, ICONIC AWARDS 2021, ABB LEAF AWARDS 2020-2021, Shortlist, WAF 2020-2021, Shortlist.conic Awards 2019, 2020 and German Design Award 2021, Special Mention.

Other prizes
AWARDS/PRIZES in 2021 THE PLAN AWARD 2021 WINNER (ITALY) ICONIC AWARDS 2021 WINNER (GERMANY) ABB LEAF AWARDS 2020-2021 SHORTLIST(EUROPE) WAF 2020-2021 SHORTLIST (INTERNATIONAL) GERMAN DESIGN AWARD 2021 SPECIAL MENTION (GERMANY)

Photo Credit: Ryuichi Sasaki

Outstanding Property Award London
Privacy Overview

This website uses cookies so that we can provide you with the best user experience possible. Cookie information is stored in your browser and performs functions such as recognising you when you return to our website and helping our team to understand which sections of the website you find most interesting and useful.