LOG-IN / REGISTER
Platinum 2021 / ARCHITECTURAL DESIGN

  Share on social media  

  • Project Title

    New Munch Museum


  • Winning Firm

    Estudio Herreros


  • Lead Designer

    Juan Herreros, Jens Richter


  • Awarded

    PLATINUM AWARD, ARCHITECTURAL DESIGN, Memorials, Public spaces
  • Project Location
    Oslo, Norway
  • Project Status
    Completed
  • Completion Date
    2021

  • Architectural Firm
     
  • Architect Firm / Studio Name
    Estudio Herreros
  • Lead Architect(s)
    Juan Herreros, Jens Richter
  • Other Team Members
    Beatriz Salinas, Carlos Canella, Andrea Molina, Paola Simone, Carlos Ramos, Iván Guerrero, Ana Torrecilla, Alberto Sánchez, María Franco, Raúl García, Frank Müller, Víctor Lacima, Carmen Antón, Ramón Bermúdez, Margarita Martínez, Luis Berríos-Negrón, Spencer Leaf, Verónica Meléndez, Xavier Robledo, Ricardo Robustini, Paula Vega
  • About Firm
    Project Director:Gonzalo Rivas Project Team: Local Architects:LPO Arkitekter Facades:Bollinger + Grohmann, ARUP Sustainability:Asplan Viak General Engineering:Multiconsult, Hjellnes Consult, Brekke & Strand Akustikk ICT:Rambøll Norge

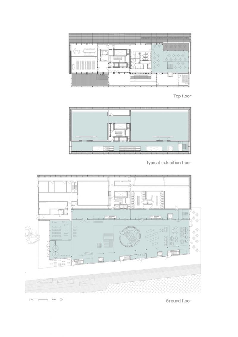
The future Munch Museum is not only a facility to safeguard and exhibit a fundamental heritage in the history and nature of Norwegian culture. It also constitutes a unique opportunity to develop a contemporary museum concept, nourished by a highly significant urban role and historical responsibility as a cohesive element of the community, not only of Oslo but also of the entire nation.

Photographs: Einar Aslaksen


Outstanding Property Award London
Privacy Overview

This website uses cookies so that we can provide you with the best user experience possible. Cookie information is stored in your browser and performs functions such as recognising you when you return to our website and helping our team to understand which sections of the website you find most interesting and useful.